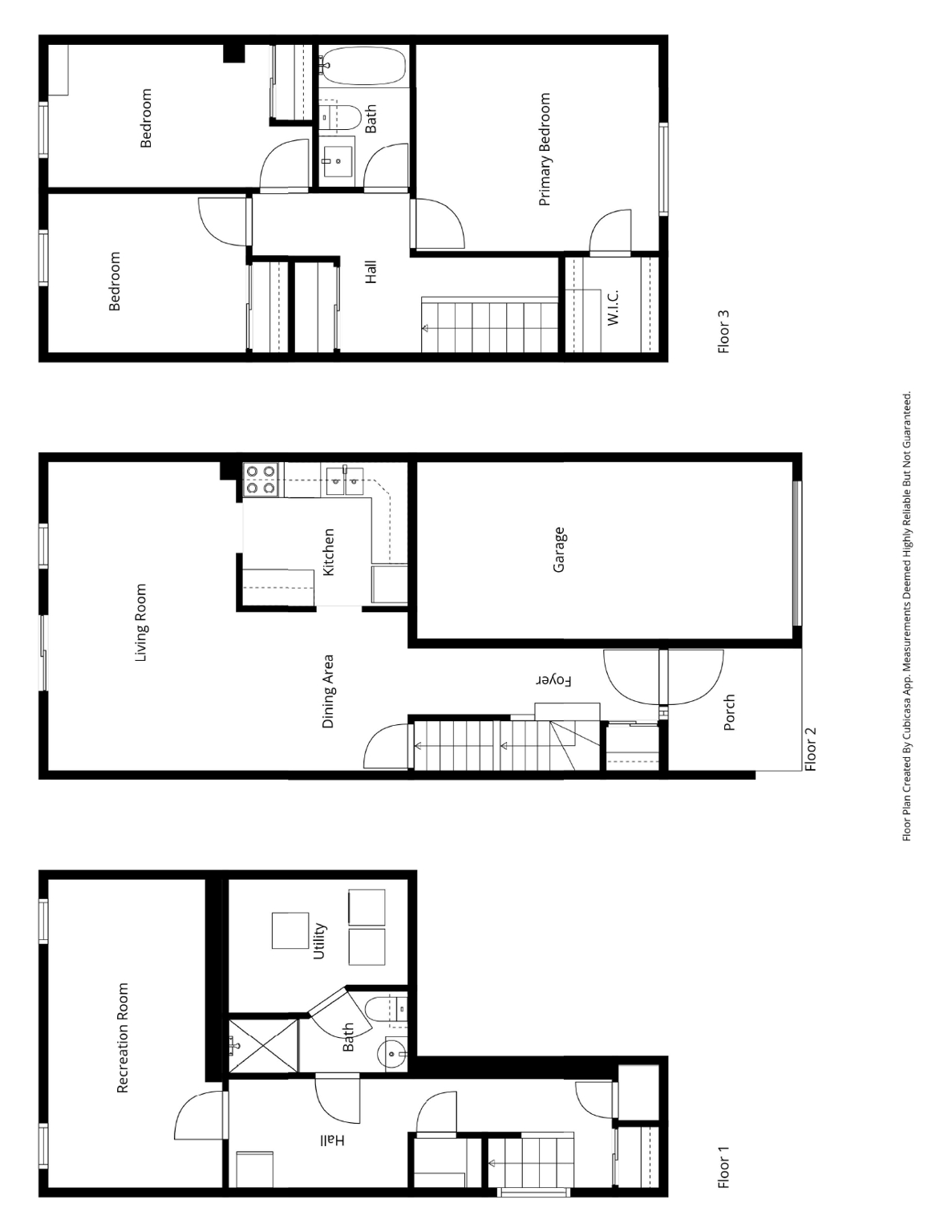
3420 South Millway 16, Mississauga, ON L5L 3V4
Toggle Navigation
Videos
Map
Previous Photo
Next Photo
Slideshow
Photo Grid
Hide
Previous
Next
Show more